Matthews Logo

Navigation Menu

9905 & 9911 Tanner Rd, Houston, TX, 77041

INDUSTRIAL BUILDING FOR LEASE
CONTACT BROKER

Key Information

Type
Industrial

2 Spaces Available

Space name
9905 TANNER RD
Rental rate
CONTACT BROKER
Space available
11,900
Space Use
industrial
Space name
9911 TANNER RD
Rental rate
CONTACT BROKER
Space available
6,800
Space Use
industrial

Highlights

PROPERTY HIGHLIGHTS

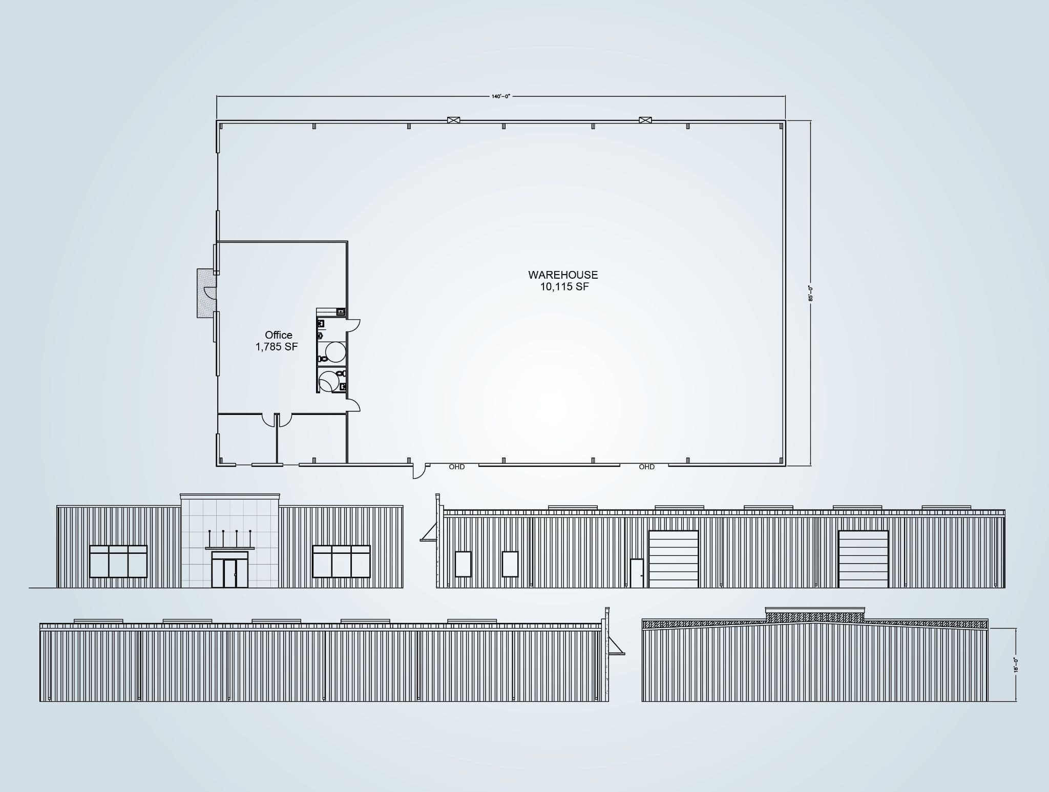
9905 TANNER RD – FOR LEASE

  • 11,900 SF w/ 2,000 SF of BTS office
  • Sits on .7 acres
  • 3 Phase power
  • 20’ eaves
  • Fully customizable
  • LED lighting
  • Private truck court
  • 2 grade level doors
  • Contact broker for additional information

9911 TANNER RD – FOR LEASE

  • 6,800 SF w/ 1,000 SF of office
  • 3 Phase power
  • 18’ eaves
  • Outside storage
  • Master planned business park
  • Available April 2025
  • Clear span warehouse
  • 2 grade level doors
  • Contact broker for additional information

Photos

Location

Agents

Broker of Record

Patrick Graham

License # 9005919 (TX)
Matthews Real Estate Investment Services, Inc
8300 Douglas Ave., Ste. 750, Dallas, TX 75225