Matthews Logo

Navigation Menu

38879 Mentor Ave, Willoughby, OH, 44094

38879 MENTOR AVE
CONTACT BROKER

Photos

Highlights

PROPERTY HIGHLIGHTS

  • ±7,691 of office/retail space available
  • Individual Office Suites available!
  • Excellent visibility located on Mentor Avenue with about 18,180 VPD
  • Less than 2 miles from Route 2, I-90, and 25 minutes from downtown Cleveland
  • 1 mile east of Downtown Willoughby
  • ±22,00 SF of warehouse space and 35 self storage units available
  • Plenty of parking and signage available!

Location

Agents

Broker of Record

Matt Wallace

License # REC.2022007141 (OH)
Matthews Real Estate Investment Services, Inc
950 Main Ave., Suite 510, Cleveland, OH 44113

Key Information

Type
Retail
Leasable Area
7,691

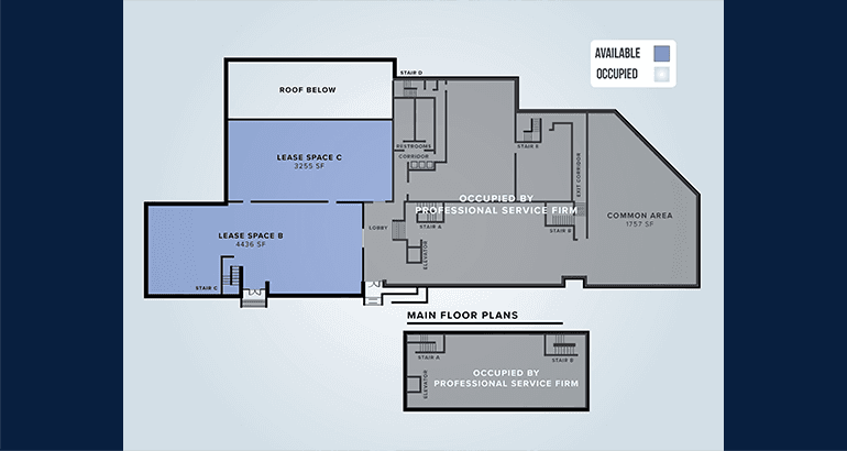
2 Spaces Available

Space name
LEASE SPACE C
Rental rate
CONTACT BROKER
Space available
3,255
Space Use
office
Space name
LEASE SPACE B
Rental rate
CONTACT BROKER
Space available
4,436
Space Use
retail